涂裝是風電塔筒生產流程中的重要一環,其質量的好換,直接影響風電塔筒使用壽命,如何保證風電塔筒涂裝質量是風電企業關注的重點。九通作為涂裝環保及空氣凈化設備的系統服務商,針對風電塔筒的生產工藝及技術要點,并結合企業的實際應用,可定制化風電塔筒涂裝生產線的整體解決方案,在保證噴涂質量的同時兼顧環境保護、生產效率!
免費熱線:400-901-8969 微信手機號:17316910092
| 序號 | 工件名稱 | 尺寸(長×寬×高)mm | 重量KG | 產量 |
|---|---|---|---|---|
| 1 | 風電塔筒 | 30000*φ(3000-5500) | 150000 | 6 段/天 |
運輸方式選擇一種或多種組合,建議軌道臺車+滾輪支架
拋丸噴砂→法蘭噴鋅-噴漆(底漆)→中漆→面漆 →烘干
| 序號 | 工藝 | 時間min | 作業方式 | 要求 | 溫度 |
|---|---|---|---|---|---|
| 1 | 噴底漆 | 120 | 自動 | 人工 | 10 |
| 2 | 烘干 | 60-120 | 自動 | 天熱氣 | 35-55 |
| 3 | 噴面漆 | 90-100 | 自動 | 人工 | 10 |
| 4 | 烘干 | 60 | 自動 | 天熱氣 | 35-55 |
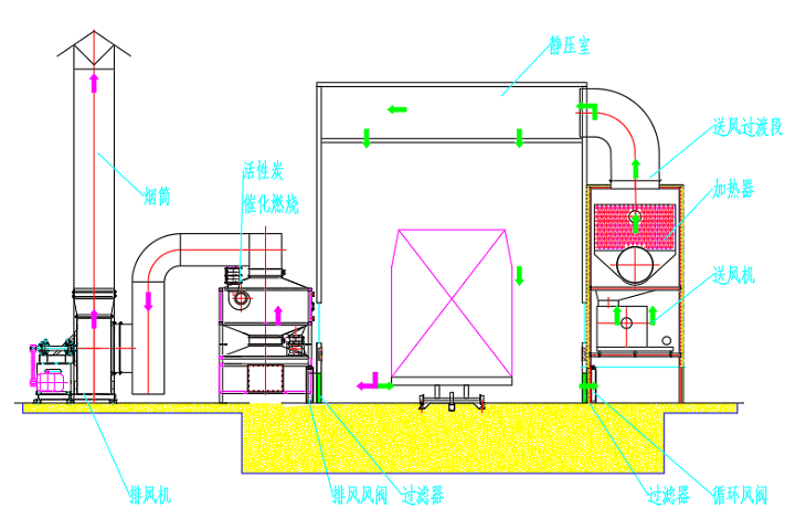
噴漆烘干房內,工件噴涂采用干式漆霧回收過濾,VOCs 廢氣處理設備已通過當地環保審核為準,并設置在線監測設備。噴涂結束后就地加熱烘干。
噴漆烘干房由室體、前端龍門式送風、室內照明、后端龍門式抽風隔道、送風機組、漆霧分離機組、電氣控制系統組成。
| 噴漆段 | ||
|---|---|---|
| 送風 | 取氣條件 | 車間外進氣 |
| 溫度控制 | 噴漆作業:夏季自然風;冬季3-9℃ 烘干作業:40-65℃ | |
| 濕度 | 同環境濕度 | |
| 潔凈度 | G4、G600雙級過濾 | |
| 排風 | 漆霧處理 | 干式(漆霧氈) |
| 廢氣處理 | 活性炭吸附催化燃燒 | |
| 廢氣排放 | >15m煙筒高空排放 | |
| 照度 | ≥600LUX | |
| 消防安全 | 可燃性氣體報警器 | |
| 設備噪音 | ≤75dB | |
噴漆時工作原理 在噴漆時送風閥門及排風閥門處于開啟狀態,首先新風經過新風過濾器過濾后,在送風機的作用下,氣流進入靜壓室入口通過導流板初步均壓,當靜壓室內氣流均勻并超過精密過濾棉的初祖后,以層流的方式進入滾涂房內。當輪涂室利用空氣誘導原理使含有漆霧的空氣經過底部過濾棉過濾掉漆霧后,然后經過活性炭的吸附作用與廢氣中的有機氣體產生反映,進行吸附,最終將空氣達標后排到大氣中。排出的氣體符合GB16297-1996《大氣污染物綜合排放標準》。 | ![]() |
![]() | 烘干時工作原理 上送風、下回風熱風循環式。在烘干時新風閥門處于半關閉狀態,排風閥門關閉狀態。供風機底部循環風閥處于開啟狀態。烘干時,通過送風/加熱系統內的換熱裝置對循環風進行加熱。烘干設計溫度0~60±5°℃,天然氣做能源。熱風從上部部送入,下部回風。工件烘干過程中,工件漆膜內殘存的有機溶劑不斷揮發出來,為了使烘干室內的氣體中有機溶劑的含量低于爆炸濃度的下限,烘干室保持安全運行,循環熱風中要補充一定的新鮮空氣,同時要排出一定量的高濃度的廢氣。烘干室內裝有溫度傳感器,以顯示各點溫度,并設有自動調溫裝置,使溫度波動控制在±5°℃以內。 |
3.風電塔筒有機廢氣處理設備輥漆廢氣→漆霧過濾→干式漆霧過濾+活性炭吸附→系統風機→排放
↓
活性炭再生 該有機廢氣凈化裝置采用多個活性炭床和1個催化分解床的配置方式;每個活性炭床的處理風量為 20000 或 30000m3/h;所有活性炭床共用一個催化分解床,脫附在不工作時輪流進行。 | ![]() |
為了保證活性炭吸附床的凈化效率和使用壽命,確定在活性炭吸附床前再設置一級漆霧過濾器,可利用原有排風機組原有過濾箱,內部結構更改為我方所獨有VQ預處理系統,可節約過濾棉使用量,減少更換次數。 | 活性炭吸附床設計規范標準結合現有排風機組尺寸,盡量多的放置活性炭量,增加活性炭的吸附飽和周期,滿足設計規范中要求的過濾風速,減少周期性的脫附次數,提高活性炭的使用壽命。 |
催化燃燒爐設置阻火器,防火閥等裝置,采用 PLC 控制,實現與各個電器系統的連鎖控制,并與原噴漆房的控制系統實現互鎖,當有故障時報警提示。整體吸附床配置有氮氣滅火系統,進一步避免火災引起的安全隱患。 | 催化燃燒再生系統脫附時采用內循環,脫附熱氣和分解排放廢氣以換熱的方式進行循環利用,當脫附結束時再進行排放。在廢氣分解后的熱風管路中設置濃度檢測裝置,保證脫附后的熱氣為潔凈的熱能空氣,在經過循環利用至吸附床脫附時不會對活性炭產生二次污染,大大提高熱量的利用,降低加熱能源的損耗。 |
選用高碘值的活性炭,保證活性炭的吸附效果,同時提高活性炭的吸附效率和使使用壽命,選用碘值≥1000 的蜂窩活性炭做濃縮媒介。 | 所有風機增加減噪間,設置消音設施,噪音控制在≤80D。 |
![]() | ![]() | ![]() |
![]() | ![]() | ![]() |
| 序號 | 項目名稱 | 參數/規格 |
|---|---|---|
| 一、 | 噴漆烘干系統 | |
| 1、 | 房體系統 | |
| (1) | 房體骨架 | HS |
| (2) | 彩鋼板及包邊 | HS 100mm巖棉板 |
| (3) | 靜壓室 | HS |
| (4) | 電動提升大門 | HS |
| (5) | 安全門 | HS |
| 2、 | 送風系統 | |
| (1) | 送風風機 | B4-82-6.3E/15kw |
| (2) | 送風加熱機組 | |
| (3) | 轉換風閥 | 1000×1200mm |
| (4) | 送風風管及支架 | δ1.2mm 熱軋鍍鋅板 |
| (5) | 回風管路及支架 | |
| (6) | 鋼平臺 | |
| 3、 | 加熱系統 | JT-21R-300 |
| (1) | 天然氣燃燒機(含調壓 閥、軟管) | RS50 |
| (2) | 換熱器 | JT-TJR-50/310S 不銹鋼板 |
| 4、 | 排風系統 | JT-22-600 |
| (1) | 排風風機 | B4-72-12C -75kw |
| (2) | 風閥 | |
| (3) | 排風風管 | δ1.2mm熱軋鍍鋅板 |
| (4) | 排風減噪間 | 50mm巖棉彩板和骨架 |
| (5) | 排風軟連接 | |
| (6) | 風閥及管路 | |
| (7) | 煙筒(含檢測平臺、爬 梯、避雷針) | 1.2mm 鍍鋅板 |
| 5、 | 空氣過濾系統 | |
| (1) | 初效過濾器 | G4(布袋式) |
| (2) | 精密過濾棉 | G-600 |
| (3) | 初效過濾器托架 | |
| 6、 | 漆霧過濾系統 | |
| (1) | 漆霧過濾棉 | PA-50 |
| (2) | 托架 | 1000×1000mm |
| 7、 | 照明系統 | 18W/根*4 |
| 8、 | 廢氣處理系統 | 見廢氣處理系統 |
| 9、 | 電器元件 | 主要元件施耐德 |
| 10、 | 可燃氣體濃度報警系統 | 1托4 |
| 11、 | 控制系統 | 西門子PLC |
| (1) | 電控箱 | |
| (2) | 電氣元器件 | PLC、變頻器、接觸器、熱繼保護器等 |
| (3) | 電線電纜 | 國際 |
| (4) | 線槽 | 標準 |
| (5) | 輔料 | |
備注:設備尺寸均為參考,可以根據客戶產品尺寸設計制作。
| 序號 | 項目名稱 | 參數/規格 |
|---|---|---|
| 一、 | 活性炭廢氣處理+催化燃燒再生系統 | JT-110-650 |
| 1、 | 活性炭吸附系統 | |
| 預處理及活性炭吸附床 | JT-112-200 | |
| 2、 | 催化燃燒脫附系統 | |
| 催化燃燒爐 | JT-RCO90(含脫附風機,補冷風機) | |
| 排風管 | 鍍鋅板 | |
| 系統內管道 | 鍍鋅板+巖棉保溫層 | |
| 3、 | 電控系統 | 西門子PLC,施耐德電器元件 |
備注:設備尺寸均為參考,可以根據客戶產品尺寸設計制作。
| 序號 | 項目名稱 | 參數/規格 |
|---|---|---|
| 1 | 初效過濾器 | G4 |
| 2 | 精密過濾棉 | G600,15 ㎡/套 |
| 3 | 二級漆霧過濾棉 | F7 |
| 序號 | 項目名稱 | 參數/規格 |
|---|---|---|
| 1 | 初效過濾器 | G4 |
| 2 | 二級漆霧過濾棉 | F7 |
備注:設備尺寸 均為參考,可以根據客戶產品尺寸設計制作。
如想量身定制 ,可加微信咨詢:

掃一掃立即溝 通銷售
噴烘一體房房體
![]() | ![]() | ![]() |
室體主材料 室體內、外壁板采用厚度為δ0.5mm 鍍鋅鋼板,中間填充夾心保溫層巖棉,巖棉δ100mm 厚,密度為 180kg/m3,使外壁板溫度不高于室溫 5℃,傳熱系數不大于 0.38Kcal/㎡.h.℃,平均隔音量不小于 21.5R(dB);具有美觀、密封效果佳、保溫隔熱效果好、抗沖擊性優良等優勢;房體立柱采用鋼結構型鋼制作,均做噴砂處理,噴涂底漆、面漆,防銹性和耐候性強,其耐鹽霧性能≮500h,強度、穩定性、保溫性、密封性、抗沖擊性、抗震性達到國家或行業標準要求 | 大門 采用電動柔性提升大門,鋼材焊接沖壓或鋁合金型材,防腐,防鹽、防紫外線,軌道綜合精度:<3mm,房體出入口各設置 1 套,四周密封,所有軌道與門簾都配有橡膠密封,密閉性良好,大門啟閉速度:6-15m/min (可定自義),抗風性能:使用面積大(800~1500m2)、抗風性能強(≤12 級);安全措施:控低壓 24VDC 控制、紅外線安全保護(或光幕)、門簾運行警示燈閃爍、壓力氣囊等(其中部分為選配件);控制系統:西門子可編程控制器、臺達等變頻器組成或伺服控制器 | 安全門 在房體縱向設置向外開啟的安全門,并安裝防暴應急燈,以方便人員進出以及緊急情況時人員疏散撤離。安全門尺寸(寬×高)mm:800×1900,安全門帶機械壓力鎖及自動閉門器,當房內壓力超過100Pa 時能自動往外打開人行門泄壓,起到泄爆作用。根據輥涂烘干房房體長度尺寸在室體一側開設1-3套安全門 |
送風/加熱系統 根據GB14444一2006<涂裝作業安全規程鞮涂室安全技術規定>的控制風速,并依據工業鞮涂要求,噴漆室采用微負壓設計,即排風量略大于送風量的3~5%,可避免外部粉塵進入到作業區。 | ![]() |
![]() | ![]() | ![]() | ![]() |
瑞士BELLMO風閥控制器 | 送風/加熱箱 | 防爆離心風機 | 防爆離心風機 |
排風系統 配置1套B4-72型防爆離心風機機組,風機、電機均為防爆型;排風機座采用槽鋼、角鋼工業型材焊接成框架,排風管道均采用A1.2MM優質鍍鋅鋼板咬口制作,無需焊接,保證了管路成型無變形;在風機底部安裝阻尼或彈性減器,同時我們設計有風機減噪間,確保系統噪聲控制在75DBA以下;排風煙囪尺寸的確定,取決于氣流速度、及排放有害物質的濃度共同確定,在安裝上采用抗風結構加固。 |
|
噴漆系統
由美國GRACO手動高壓無氣噴槍供漆室或者噴涂機器人組成,客戶可定制化
![]() | ![]() | ![]() |
美國GRACO手動高壓無氣噴槍 | 供漆室 | 噴涂機器人 |
漆霧過濾系統
采用干式過濾裝置,設有兩級過濾,過濾等級分別為箱式過濾器、 F7,在過濾器前后設置在線壓差變送器,保證廢氣處理系統正常、安全、穩定運行。
![]() | 箱式過濾器 | ![]() | F7過濾袋 |
箱式過濾器迷宮設計,利用離心原理,保證更好的過濾漆霧,其一二層采用過濾凈化效率高、無二次污染的玻璃纖維阻燃過濾材料,具有高容塵量的特點;第三四層采用高效無紡布材料,確保粉塵過濾效率更高,經粉塵處理裝置凈化后,廢氣中的粉塵濃度≤ 0.04mg/Nm3,粉塵過濾材料采用抽屜式安裝,更換方便快捷 | F7 中高效過濾濾材為有機合成纖維和微纖構成的無紡布,呈逐漸遞增纖維結構,平均捕捉效率高達 99%以上,耐溫 90℃。過濾器采用模塊化設計方便組合、安裝拆卸,使設備具備良好的實用性,過濾器框架及地板采用滿焊的結構,確保無泄露、不漏風,所有廢氣都經過過濾袋,漆霧捕捉效率高達 99%以上。 |
廢氣處理設備
噴漆作業時,廢氣神放需經處理,使處理后的廢氣滿足GB3L6297-195 (大氣污染物綜合持放標準)。本方案采用活性炭系統+RCO催化燃燒,利用活性碳多微孔的吸附特性吸附有機廢氣,可處理低濃度、低溫度、含碳氫化合物的廢氣,溶劑可回收,進行再利用,凈化效率高達90-95%。活性炭是一種非極性吸附劑,具有疏水性和親有機物的性質,能吸附絕大部分有機氣體,如苯類、醛酮類、醇類、烴類等以及惡臭物質,吸附飽和后可用熱空氣脫附再生,重新投入使用
![]() | ![]() |
活性炭 活性炭主要應用于低濃度、大風量的各種有機廢氣凈化,包括甲苯、二甲苯、苯等苯類、酚類、酯類、醛類等有機氣體及惡臭味氣體,九通活性炭選用特殊成型的高微孔、高比表面積的蜂窩狀活性炭作為吸附材料,比重比條形活性炭纖維大 8-10 倍,具有吸附容量大(再生前吸附有機溶劑可以達到活性炭總重量的25%)、阻力小、吸附速度快、運行成本低、使用壽命長等優勢,凈化后氣體完全滿足環保排放要求。 | 催化分解床 有機廢氣經過蜂窩狀陶瓷催化劑分解床層時,HC 分子和 O2 分子分別被吸附在催化劑表面并被活化,因而能在較低溫度下(200~300℃)迅速完全氧化分解成無害的二氧化碳和水蒸汽,同時釋放熱量; 所有過程不會造成二次污染。催化分解凈化率一般都在 98%以上,加之反應溫度低,無 NO×生成。采用優質貴金屬鈀、鉑載作催化劑,催化分解率達 99%以上,具有很高的比表面積、反應空速較大、壽命長、分解溫度低、阻力小、脫附預熱時間短、能耗低、機械強度大、耐磨、耐熱沖擊、催化活性及熱穩定性好的特點 |
標準設備
根據GB1444-2006<涂裝作業安全規程噴涂室安全技術規定>的控制風速,并依據工業噴涂要求,噴涂室采用微負壓設計,即排風量略大于送風量的3~5%,可避免外部粉塵進入到作業區。
![]() | ![]() | ![]() | ![]() |
照明裝置 | 安全報警系統 | PLC顯示界面 | 電控系統 |
符合國家/行業/地方標準,整條風電塔筒涂裝生產線高效、穩定、安全、環保。
| 國家標準/行業標準/地方標準 | 編號 |
|---|---|
| 《涂裝前鋼材表面腐蝕等級及除銹等級》 | GB8923-88 |
| 《車間空氣粉塵衛生標準》 | GB103328-10333-89 |
| 《涂裝作業安全規程涂漆前處理工藝安全及其通風凈化》 | GB7692-1999 |
| 《安全標準》 | GB2894-1996 |
| 《工業企業防護罩安全要求》 | GB8196-87 |
| 《低壓配電設計規范》 | GB50054-95 |
| 《登高梯臺欄桿安全標準》 | GB4053-83 |
| 《涂裝作業安全規程、涂漆工藝安全及其通風凈化》 | GB6514-1995 |
| 《涂裝作業安全規程、勞動安全和勞動衛生》 | GB7691-87 |
| 《工業企業噪音控制設計規范》 | GBJ87-85 |
| 《安全標致》 | GB2894-1996 |
| 《工業企業照明設計標準》 | GB50034-92 |
| 《工業機械電氣第一部分:通用技術》 | GB/T52226.1-1996 |
| 《工業機械電氣設備通用技術條件》 | GB/T522611-96 |
| 《工業企業界的噪聲標準》 | GB12348-90 |
| 《大氣污染物綜合排放標準》 | GB16297-1996 |
| 《生產過程安全、衛生要求總則》 | GB12801-91 |
| 《工業企業設計衛生標準》 | TJ36-79 |
| 《電氣裝置安裝工程低壓電器施工及驗收規程》 | GB50254–1996 |
| 《機械防護安全距離》 | GB12265-90 |