活性炭吸附+RCO蓄熱式催化燃燒系統是在活性炭+RTO蓄熱式焚燒法基礎上研發而成的新一代VOCs(有機廢氣)處理設備,相較于RTO,RCO在催化劑的作用下只需要 300℃左右(RTO 800℃以上)的起燃溫度,節能、安全,完全不產生 NOX,適用于大風量、中低濃度、不含塵、干燥常溫、間歇排放的有機廢氣處理;根據多孔活性炭的吸附凈化功能以及其在高溫狀態下表現的脫附性質,將有機廢氣分別吸附和脫附,脫附后的有機物進入催化燃燒裝置并在300-400 ℃進行催化氧化處理,去除效率可達 97%以上,并將有機物燃燒釋放的熱量有效利用,熱力回收效率高達 95%以上,而催化燃燒為 30%,直接燃燒為 50%。
九通活性炭吸附+催化燃燒系統具有適用范圍廣、結構簡單、操作便捷、凈化效率高(吸附效率90-95%、催化分解97%以上)、廢熱回收效率高、運行成本低、無二次污染等優點!
免費熱線:400-901-8969 微信手機號:17316910092
ug環球會員登錄,環球ug在線注冊宣傳冊.pptx
1.活性炭吸附+ 催化燃燒設備 產品優勢
凈化效率高:二室凈化效率≥95%,三室凈化效率≥99%,且蓄熱效率高:≥95%
性能穩定:模塊化標準化設計,出錯概率低、質量更好,保證設備運行穩定,且交貨期更快
成本低:同等條件達到相同凈化效率,和分子篩吸附相比,低阻低耗,且投資成本也更低,性價比更高
針對性更強:蜂窩活性炭對漆霧、粉塵等耐久性較強,更適合于噴漆廢氣治理的場合
安全性高:活性炭吸附裝置設置阻火、超溫和超壓保護措施和消防水防護設施,催化燃燒爐設系統壓力、燃燒溫度、燃燒風機等多種監控,安全系數高
運行費用低:本設備適用于間歇生產,生產線運行時采用連續吸附凈化,生產線停機時進行脫附,根據廢氣產生的實際情況,吸附周期長,脫附頻率低,如此催化燃燒床啟動頻率降低,大大減少了運行費用;可用催化燃燒處理廢氣產生的熱量進行脫附再生,脫附后的氣體再送催化燃燒室凈化,不需要外加能量,運行費用低,節能效果顯著
2.公司優勢
集現場勘測、設計、生產、安裝、售后一站式服務
10+年行業經驗,案例眾多,免費設計非標解決方案
誠信做人做事,不偷工減料,保品保工期,做良心項目
合同質保金、質保2年,我們有信心
活性炭吸附+RCO催化燃燒設備主要用于涂裝行業、涂布行業、制藥行業、印刷行業、石化行業、制革、塑料、化工等車間,有機廢氣處理的種類如下:碳烴化合物、苯及苯系物、醇類、酮類、酚類、醛類、酯類、胺類、腈、氰等,特別適用于大風量、中低濃度間歇排放的場合。九通有機廢氣處理設備已在天順風能、遠景能源、蕪湖力鈞軌道、中車時代、中車集團、中集集團、上海中曼石油、山東路橋、東恒宇功能材料、中國運載火箭技術研究院、青島中集冷藏箱制造、包頭國電動力、廊坊中晨石油設備、遼寧華榮重工機械等公司成功應用,實力工廠廠家,保質保工期,確保過環評。
![]() | ![]() | ![]() |
![]() | ![]() | ![]() |
![]() | ![]() | ![]() |
| 活性炭吸附工作原理 | 活性炭脫附再生裝置原理(RCO催化燃燒) |
利用活性炭多微孔的吸附特性吸附有機廢氣是一種最有效的工業處理手段。活性炭是許多具有吸附性能的碳基物質的總稱,其經過活化處理后,比表面積一般可達700-1000m2/g,具有優異和廣泛的吸附能力。吸附可使有機廢氣凈化效率高達90-95%。活性炭還是一種非極性吸附劑,具有疏水性和親有機物的性質,它能吸附絕大部分有機氣體,如苯類、醛酮類、醇類、烴類等以及惡臭物質。活性碳吸附飽和后可用熱空氣脫附再生使活性碳重新投入使用。 | 活性碳吸附飽和后,利用熱空氣將活性炭內的有機廢氣脫附出來,通過控制脫附過程流量可將有機廢氣濃度濃縮10-20倍,脫附氣流經催化床內設的電加熱裝置加熱至300℃左右,在催化劑作用下起燃,催化分解過程凈化效率可達97%以上,分解后生成CO2和H2O并釋放出大量熱量,該熱量通過催化分解床內的熱交換器一部分再用來加熱脫附出的高濃度廢氣,另外一部分加熱室外來的空氣,作為活性碳脫附氣體使用,一般達到脫附~催化分解自平衡過程須啟動電加熱器1小時左右。達到熱平衡后可關閉電加熱裝置,這樣的再生處理系統靠廢氣中的有機溶劑做燃料,在無須外加能源基礎上使再生過程達到自平衡循環,極大地減少能耗,并且無二次污染的產生,整套吸附和催化分解過程由PLC實現自動控制。 |

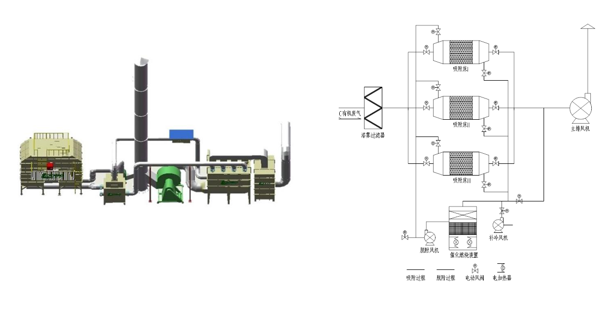
為了保證活性炭的吸附效果,在活性炭床前各設置一漆霧過濾器。整套凈化裝置工藝流程圖及系統圖如下:
有機廢氣→漆霧粉塵過濾→活性炭吸附→防爆排風機→煙囪達標排放
↓
催化燃燒脫附再生裝置
由于漆霧、粉塵、水分的存在會影響活性炭的使用壽命,因此在活性炭吸附床之前增加一套干式過濾器,用于對有機廢氣中的漆霧、粉塵、水分進行進一步的過濾,九通采用VQ漆霧凈化系列,是傳統的干式或水洗漆霧凈化產品的更新替代產品,具有“結構簡單占地面積小、凈化效率高(達90-99%)、運行費用低(可反復利用)、無二次污染、更新濾料及維修方便”等特點,該產品可廣泛應用于家具、航空、汽車、船舶、集裝箱、電器、電子等各行業噴漆漆霧的凈化。
![]() | 不銹鋼絲網 | ![]() | 干式玻璃纖維漆霧過濾棉 |
不銹鋼絲網采用穿透型,可將較大漆霧顆粒截留的同時,為相對小的漆霧顆粒提供聚集核,其主要作用是避免較大顆粒漆霧在后續過濾介質的富集,延長后續過濾介質的使用周期。該層不銹鋼絲網同時起阻火作用。 | PA-50是一種帶有深負載層的漆料過濾器,它具有連續的、堅固的單絲玻璃纖維結構,捕捉率高:93%-97%;阻力低:20Pa;耐高溫:最高170℃;過濾級別:G4;漆霧吸物量:3500g-4700g;采用雙層過濾材料,容塵量大、阻力低、過濾風速大、阻燃、無二次污染 |
活性炭吸附設備具有吸附容量大、吸附設備小、吸附效率高、吸附脫附快、有機廢氣資源化利用率高等優點,凈化效率可達90-95%,非常適合于大風量下使用。
![]() | ![]() | ![]() | ![]() |
| 吸附箱 | 活性炭 | 吸附風機 | 風閥執行器 |
吸附箱體的內、外壁采用Q235 t=2mm鋼板制成,外部連續焊接,無氣泡、夾渣等現象,整體美觀 | 方孔蜂窩狀活性炭塊(過濾性),蜂窩結構風阻小、比表面積大(800-1000m2/g)、吸附效果好,凈化效率可達90-95%,適合于大風量下使用;活性炭吸附床可用催化燃燒處理廢氣產生的熱量進行脫附再生,脫附后的氣體再送催化燃燒室凈化,不需要外加能量,運行費用低,節能效果顯著,同時廢氣凈化效率高,滿足環保排放標準。 | 4-72/4-73離心風機,無耐溫要求,皮帶輪驅動,低能耗、高效率、穩定強;多翼葉輪,葉輪材質為16Mn,噪音不大于85dB(A);風機風量、風壓等參數滿足設計要求 | 電動風閥執行器采用微電腦控制,在0~90°全行程范圍內具有自動過載保護;運行角度可在0~90°范圍內以5°為單位任意調整,使閥門最大開度設定非常方便;采用全封閉式結構,可靠性更高。 |
由阻火器、換熱器、預熱室、熱電偶、催化分解床、防爆器、脫附風機等組成,在催化劑的作用下只需要 300℃左右(RTO 800℃以上)的起燃溫度,節能、安全,完全不產生 NOX,有機廢物去除效率可達 97%以上,且熱力回收效率高達95%以上
![]() | ![]() | ![]() | ![]() | ![]() |
| 阻火器 | 換熱器 | 熱電偶 | 催化床 | 脫附風機 |
由特制的多層金屬網組成,可阻止火焰通過,過濾掉氣體中較大的顆粒(污物),是本凈化裝置的安全裝置之一 | 利用催化反應放出的熱量,加熱進口廢氣,提高熱能利用率,減少加熱電能;內膽采用 SUS316L δ3mm 不銹鋼經氬弧焊焊接制作而成,換熱面積大,換熱效率高,配有風壓開關,無循環風時,會立即切斷燃燒器,停止加熱,安全性高 | 采用不銹鋼保護管測量進氣加熱溫度及凈化溫度 | 由多層陶瓷蜂窩體的貴金屬催化劑(Pt、Pd和Au)組成,起燃溫度低(200℃起燃),整體式蜂窩結構,阻力小,用低壓風機可正常運轉,耗電少且噪音低;去除效率高(>95%),對典型VOCs污染物達到99%以上,催化活性強、耐高溫、抗氧化、耐腐蝕。催化劑本身不參與反應,反應前后基本無消耗,使用壽命長,正常使用壽命3-5年 | 采用后引風式,使本裝置在負壓下工作。離心風機,無耐溫要求,皮帶輪驅動,低能耗、高效率、穩定強;多翼葉輪,葉輪材質為16Mn,噪音不大于85dB(A);風機風量、風壓等參數滿足設計要求 |
安全措施部件活性炭吸附+RCO催化燃燒系統采用PLC進行自動控制,可使凈化系統內的脫附循環、催化反應后余熱循環不停機連續運行,穩定高效;過載、短路、缺相保護,并配有阻火除塵器、泄壓口、溫度超溫報警、閥門PID調節裝置,確保整個系統的安全性。 | ![]() |
| 序號 | 項目名稱 | 參數/規格 |
|---|---|---|
| 1 | 處理風量(m3/h) | 55000 |
| 2 | 廢氣濃度(mg/ m3) | ≤1000 |
| 3 | 廢氣進口溫度(℃) | ≤40 |
| 4 | 處理有機廢氣氣體成分 | 含苯、甲苯、二甲苯的氣體 |
| 5 | 凈化效率 | ≥95% |
| 6 | 設備運行阻力(pa) | ≤1500 |
| 7 | 脫附功率(kw) | 48 |
| 8 | 活性炭床個數 | 4個 |
| 9 | 脫附加熱時間(h) | 1-1.5 |
| 10 | 脫附時間(h) | 0.5-1 |
| 11 | 脫附溫度(℃) | 80-120 |
| 12 | 活性炭種類 | 活性炭纖維 |
| 13 | 活性炭纖維厚度(mm) | 10 |
| 14 | 活性碳更換時間(年) | 2~3年 |
| 15 | 活性炭裝載量(m3) | 約2 |
| 16 | 催化劑種類 | 蜂窩陶瓷貴金屬催化劑 |
| 17 | 反應起燃溫度 | 260℃ |
| 18 | 反應溫度 | 280℃ |
| 19 | 催化劑使用壽命 | 8000-10000小時 |
| 20 | 總裝機功率(kw) | 56 |
備注:設備尺寸 均為參考,可以根據客戶產品尺寸設計制作。
如想量身定制 ,如 涂裝生產線 、噴漆房、噴砂房等,可加微信咨詢:

掃一掃立即溝 通銷售
1.擁有ISO9001質量管理體系、環境管理體系雙證書,為產品質量保駕護航
2.2014年被列入航空航天企業認可的高科技環保涂裝企業
3.國家高新技術企業、安全生產標準化認證公司
1.完成“涂裝工業機器人”、“涂裝廢氣處理系統”、“環保循環磨料回收系統”、“復合型強力吸砂底板技術”技術創新
2.獲得8項國家專利,擁有自主知識產權
3.十余年設備(標準、非標)及產線定制化項目應用實施經驗,值得信賴
1.不弄虛作假,堅守質量是企業第一生命線
2.源頭設備生產廠家,質保期兩年(除易損易耗件),在保質的基礎上保價
1.擁有一支專業培訓后的施工團隊,保質保期完成項目
2.售后部門實行7*24小時電話或在線服務
3.擁有北京、山東、浙江售后服務站,并具有完善售后體系,故障排除效率高